Jump to main content

1438 Mortise lock for tubular frame doors

Skip slider
  • Mortise lock for tubular frame doors
  • Mortise lock for tubular frame doors
  • Mortise lock for tubular frame doors
Mortise lock for tubular frame doors
  • Mortise lock for tubular frame doors
  • Mortise lock for tubular frame doors
  • Mortise lock for tubular frame doors

End of slider

  • Certified according to EN 12209: Yes
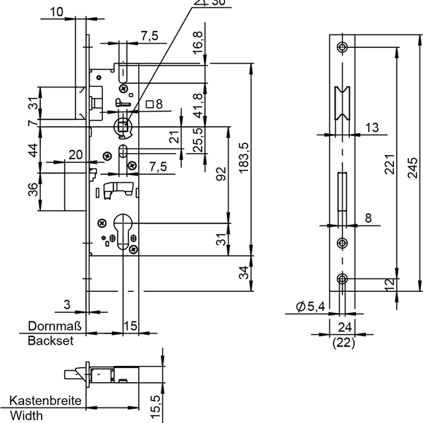
  • Deadbolt throw: 20 mm
  • Deadbolt turn: 1-turn
  • DIN Direction: DL / DR
  • Distance: 92 mm

Item no. 1438

Find a retailer now

Certified according to EN 12209 Yes
For burglar-resistant doors according to EN 1627-1630 Optional
SKG** certified Optional (Item 1738)
Usage Tubular frame doors made of aluminium and steel

Backset25, 30, 35, 40, 45, 50 mm
Backset (1)15 mm
CylinderProfile cylinder / Swiss round cylinder
Deadbolt throw20 mm
Deadbolt turn1-turn
Deadbolt typeStandard
DIN DirectionDL / DR
Direction must be statedNo
Distance92 mm
Flat forend (standard design)24 x 3 mm
Follower8, 9, 10 mm
Follower turning angle30°
Forend length245, 270 mm
Forend materialStainless steel / Iron galvanised
Latch bolt exclusion10 mm
Latch bolt typePrism latch bolt
Latch lever functionYes
Lock case depth15,5 mm
Lock case height183,5 mm
Lock case materialSteel galvanised
Lock case widthsBackset + 15 mm
Notice U shaped forendAll U-shaped forends are delivered with end caps, Backset changes by -1 mm for U-shaped forends
Reversible latch boltYes, delivered as DIN left
U-shaped forend (standard design)24 x 6 mm
Series1438

15

Results found

Show per page

DescriptionLanguageFile sizeFile type
Prospekt Rohrrahmenschlösser de 5.59 MBpdfDownload
Brochure Locks for metal frame doors en 5.59 MBpdfDownload
Prospekt Renovierungsschlösser de 6.79 MBpdfDownload
Prüfzeugnis nach EN 12209 de 263.57 KBpdfDownload
Prüfzeugnis nach EN 12209 pl 263.57 KBpdfDownload
Test certificate EN 12209 en 263.57 KBpdfDownload
VdS approval - Class C burglar alarm systems en 1.30 MBpdfDownload
VdS Anerkennung - Einbruchmeldeanlagen der Klasse C pl 1.30 MBpdfDownload
VdS Anerkennung - Einbruchmeldeanlagen der Klasse C de 1.30 MBpdfDownload
Montageanleitung Falle umlegen de 560.57 KBpdfDownload
Montageanleitung Falle umlegen pl 560.57 KBpdfDownload
Installation instruction Latch reverse en 560.57 KBpdfDownload
1438-produktfoto.png96.98 KBpngDownload
1438-reno-produktfoto.png42.49 KBpngDownload
1438-techzeichnung.png89.45 KBpngDownload
Controlled latch bolt stopOptional
Deadbolt extended3 mm / 5 mm
Deadbolt monitoring device (incl. 10 m cable)Optional
Flat forend (special design)16 x 3, 20 x 3, 22 x 3 mm
Follower monitoring device (incl. 8 m cable)Optional
Latch bolt extended (optional)3 mm / 5 mm
Renovation forendOptional (380 mm, no screw holes)
U-shaped forend (special design)22 x 6 mm